ul. 11 Listopada 23/12

Sprzedaż lokalu nastąpi wraz z udziałem w częściach wspólnych budynku i urządzeń oraz w prawie własności gruntu w udziale 222/10000 części w działce 849 obręb Biała Miasto.

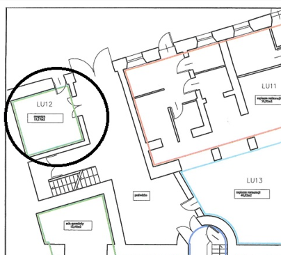
Powierzchnia użytkowa lokalu wynosi 15,17 m2.

Lokal położony jest na parterze budynku i składa się z jednego pomieszczenia – magazynu. Lokal nie posiada okna. Wejście do lokalu prowadzi od strony podwórka i placu przy ul. Łukowej. Lokal objęty jest umową najmu zawartą na czas nieoznaczony, z przeznaczeniem na cele magazynowe. Umowa najmu może zostać rozwiązana za 3 miesięcznym okresem wypowiedzenia.

Poza ww. umową najmu lokal jest wolny od obciążeń i nie jest przedmiotem zobowiązań.

Dla lokalu nie jest prowadzona odrębna księga wieczysta.

Budynek przy ul. 11 Listopada 23 posiada cechy obiektu zabytkowego, stanowi element układu urbanistycznego Białej, wpisanego do rejestru zabytków pod poz. A/1283/23, położony w strefie ścisłej ochrony konserwatorskiej „A”, podlega ochronie konserwatorskiej na podstawie przepisów ustawy z dnia 23 lipca 2003 r. o ochronie zabytków i opiece nad zabytkami. Remont lokalu należy przeprowadzić w uzgodnieniu z konserwatorem zabytków. Budynek wpisany jest do gminnej ewidencji zabytków i figuruje w Studium historyczno-urbanistycznym Białej. Nieruchomość nie jest wpisana indywidualnie do rejestru zabytków.

Nieruchomość położona jest w terenie, dla którego obowiązuje miejscowy plan zagospodarowania przestrzennego – przyjęty uchwałą Nr L/1182/2009 Rady Miejskiej w Bielsku-Białej z dnia 22 grudnia 2009 r. dla obszaru obejmującego teren Śródmieścia Białej, położony pomiędzy ulicami: Towarzystwa Szkoły Ludowej, Piłsudskiego, Jagiełły, Lwowską, ks. Stojałowskiego (z Placem Ratuszowym) i rzeką Białą jako zachodnią 
granicą planu. Zgodnie z ww. planem nieruchomość położona jest w obszarze jednostki: "125_UMW-04” – podstawowe przeznaczenie – zabudowa usługowo-mieszkaniowa śródmiejska, w tym: usługi centrotwórcze, usługi podstawowe, zabudowa mieszkaniowa wielorodzinna, zabudowa usługowo-mieszkaniowa.

W planie ustalono również zapisy dot. ochrony dziedzictwa kulturowego i zabytków dla budynku położonego przy ul. 11 Listopada 23.

Cena wywoławcza (łączna cena lokalu i udziału w gruncie) wynosi 75.249,12 zł.

Sprzedaż zwolniona jest z podatku VAT na podstawie art. 43 ust.1 pkt 10 ustawy o podatku od towarów i usług.

Ofertę należy złożyć do 19 stycznia 2026 r. Wadium należy wpłacić nie później niż do 19 stycznia 2026 r.  przelewem na konto Urzędu Miejskiego. Ogłoszenie o przetargu dostępne jest w Biuletynie Informacji Publicznej, w zakładce sprzedaż i dzierżawa nieruchomości.

Najważniejsze informacje

Adres: ul. 11 Listopada 23/12
Wysokość wadium / zaliczki: 7 500,00 zł
Obręb: Biała Miasto
Status oferty: Przetarg ogłoszony
Własność: Gmina Bielsko-Biała
Powierzchnia działki: 572m²
Numer działki: 849
Cena: 75 249,12 zł
Rodzaj nieruchomości: Lokal użytkowy
Data przetargu / rokowań: 23.01.2026 r.
Forma przetargu: Pierwszy przetarg pisemny nieograniczony

Plan zagospodarowania/Studium

Lokalizacja

Galeria zdjęć